Z tohto článku sa dozviete, ako vyrobiť stroj na rezanie kovov vlastnými rukami doma z najjednoduchších materiálov. Tu sú podrobne popísané všetky fázy vytvárania štruktúr na základe rezného kotúča alebo brúsky: príprava materiálov a nástrojov, výpočtové vzorce, podrobné pokyny krok za krokom, ako aj súvisiace informácie s užitočnými tipmi.
Obsah [Hide]
- 1 DIY rezací stroj na kovy: odporúčania pre tvorbu
- 1.1 Výroba stroja na rezanie diskov na kov vlastnými rukami: postup
- 1.2 Výpočet kladky pre domáci stroj na rezanie kovov
- 1.3 Výpočet dĺžky pásu pre domáci stroj na rezanie kovov vlastnými rukami
- 1.4 Zásady vytvárania stroja na rezanie kovov
- 1.5 Montáž kovového rámu pre rezací stroj
- 1.6 Montáž elektrických komponentov stroja
- 2 Výroba rezacieho stroja z brúsky vlastnými rukami: výkresy, technológia
DIY rezací stroj na kovy: odporúčania pre tvorbu
Kotúčové píly sú nástroje založené na špeciálnej platforme alebo ráme vyrobenom z kovu. Samotný stroj je vybavený dielmi, ktoré zabezpečujú spoľahlivé zafixovanie materiálu v určitej polohe v požadovanom uhle počas jeho rezania.
Ako rezný prvok v takýchto konštrukciách sa používa disk vyrobený z rýchloreznej ocele. Hovorí sa mu aj karbid. Môže sa tiež použiť na rezanie kovu pomocou brúsneho kotúča. Pohon rezného prvku je zabezpečený elektromotorom s remeňovým alebo ozubeným pohonom.
Poznámka! Vo verziách nástroja s nízkym výkonom je povolené používať rezací prvok nainštalovaný priamo na hriadeli elektromotora. V iných prípadoch môže byť také použitie disku nebezpečné.
Pre kotúčové stroje existujú tri rôzne posuvy rezných komponentov:
- dno;
- kyvadlo;
- čelný.
Podľa počtu rezných prvkov sú stroje:
- jedna hlava - v balení prístroja je zahrnutý iba jeden rezací kotúč, preto ak je potrebné vymeniť operáciu, je rezná hrana znovu nastavená v súlade s novou úlohou;
- dvojhlavé - dizajn umožňuje pracovať s dvoma nástrojmi naraz, čím sa zvyšuje účinnosť.V takýchto strojoch je jedna hlava v pevnej polohe a udržuje stabilitu, druhá hlava sa môže pohybovať. Štruktúry s dvoma hlavami môžu fungovať automaticky.
Výroba stroja na rezanie diskov na kov vlastnými rukami: postup
Pri výrobe stroja určeného na prácu s kovom sa činnosti vykonávajú v tomto poradí:
- Pripravujú sa ochranné kryty, ktoré sa namontujú na hnací remeň, ako aj rezací kotúč.
- Motor je nainštalovaný. Hnací remeň slúži ako spojovací kus medzi hriadeľom rezného prvku a motorom.
- Vyrába sa hriadeľ, na ktorom bude upevnená hnacia kladka a tiež bude nainštalovaný rezací kotúč. Jednotka je predmetom montáže a následnej inštalácie na kyvadle. V tomto prípade funguje pohyblivá horná časť konštrukcie ako kyvadlo, kde sú umiestnené rezný prvok a motor.
- Na pripevnenie kyvadla je vyrobený hriadeľ.
- Vyrába sa rám na inštaláciu stroja. Na ňom bude pripevnený lapač iskier a obrobok.
- Kyvadlo je namontované na ráme.
- Inštaluje sa elektrické vedenie.
- Uskutoční sa skúšobná prevádzka nastavenia nástroja a vybavenia.
Výpočet kladky pre domáci stroj na rezanie kovov
Výpočet priemeru remenice sa vykonáva s prihliadnutím na rýchlosť otáčania disku a ďalšie parametre. Ak predpokladáme, že výkon motora bude minimálne 300 W, rýchlosť otáčania disku bude minimálne 3000 ot./min a jeho veľkosť bude mať priemer 40 cm.
Užitočná rada! V procese rezania kovu je možné odskrutkovať maticu v oblasti upevnenia disku. Aby ste sa tomu vyhli, odporúča sa umiestniť hnacie kladky na ľavú stranu a samotný kotúč na hriadeľ - napravo.
Disky sú zvyčajne označené výrobcom, ktorý na produkt uplatňuje maximálnu prípustnú rýchlosť otáčania. V takom prípade je to hodnota 4400 otáčok za minútu. Preto je povolené zvoliť ľubovoľné otáčky v rozmedzí 3000-4400 ot./min.
Výpočtové údaje:
- rýchlosť otáčania motora - 1500 otáčok za minútu;
- priemer remenice určenej na inštaláciu na hriadeli je 6,5 cm;
- rýchlosť otáčania disku - 3000 ot./min.
Výpočet sa vykonáva v nasledujúcom poradí:
- Po obvode sme nastavili dĺžku šachty. Za týmto účelom sa číslo π, čo je 3,14, vynásobí veľkosťou priemeru: 3,14 x 6,5 = 20,41 cm (dĺžka hriadeľa po obvode).
- Výsledná hodnota sa vynásobí požadovaným počtom otáčok: 20,41 x 3000 ot./min. = 61230 cm / min.
- Výsledok musí byť vydelený počtom otáčok motora: 61230 cm / min / 1500 ot./min. = 40,82 cm (obvodová dĺžka remenice motora).
- Výsledná hodnota sa vydelí číslom π: 40,82 cm / 3,14 = 13 cm (požadovaný rozmer kladky).
Výpočet dĺžky pásu pre domáci stroj na rezanie kovov vlastnými rukami
Na vykonanie týchto výpočtov sú potrebné nasledujúce údaje:
- parametre hnacej remenice (polomer);
- vzdialenosť oddeľujúca stredové body kladiek;
- parametre hnanej remenice (polomer).
Vďaka 2 kladkám s rozmermi 13 cm a 6,5 cm môžete vykonať potrebné výpočty. Pretože vzdialenosť medzi stredmi týchto prvkov sa môže meniť (pretože je potrebné uviesť napnutie pásu), bude ako príklad braný segment 50 cm.
Teraz musíte počítať 1/2 obvodu každej z kladiek. Pretože hnací remeň medzi nimi beží dvakrát, musí sa k tejto hodnote pripočítať dvojnásobná vzdialenosť medzi stredovými bodmi.
Prvá kladka (obvod):
3,14 (číslo π) x 3,25 cm = 10,20 cm
Druhá kladka (obvod):
3,14 (číslo π) x 6,5 cm = 20,41 cm
Hnací remeň (požadovaná dĺžka):
20,41 cm + 10,20 cm + 50 cm x 2 = 13,06 cm
Užitočná rada! Ak chcete získať presnejší výsledok, mali by ste vykonať výpočty s maximálnou a minimálnou vzdialenosťou medzi stredovými bodmi kladiek a zvoliť priemernú hodnotu.
Aby ste mohli nezávisle vyrobiť štruktúru stroja na prácu s kovom, mali by ste pripraviť potrebné nástroje.
Povinná sada nástrojov a materiálov zahŕňa:
- zváračka;
- kovový roh (oceľ);
- kanál a reťaz;
- tlačidlo na zapnutie / vypnutie;
- ložiská;
- hriadeľ a elektrický motor;
- elektrická vŕtačka;
- oceľový plech na vytvorenie pracovnej plochy;
- skrinka na umiestnenie elektrických komponentov stroja.
Zásady vytvárania stroja na rezanie kovov
Schéma výroby domáceho obrábacieho stroja sa riadi určitými zásadami, ktoré je potrebné zohľadniť pred začatím podnikania:
- je veľmi dôležité zvoliť správny prevodový stupeň a nainštalovať ho. Od tohto komponentu závisí bezpečnosť krútiaceho momentu a jeho správny prenos z motora na rezací prvok (disk);
- je nevyhnutné zabezpečiť zlozvyk... Tento nástroj prispieva k pohodlnejšej práci a tiež zvyšuje úroveň jej bezpečnosti;
- výber optimálneho uhla rezu. Povolený rozsah je 45-90 °. Vo väčšine prípadov odborníci uprednostňujú rezanie v pravom uhle;
- priemer rezacieho kotúča sa vyberá s prihliadnutím na to, s akými materiálmi bude majster v budúcnosti na tomto stroji pracovať. Čím väčší je priemer rezného prvku, tým ľahšie sa vyrovná s rezaním hrubého kovu;
- pri navrhovaní a zostavovaní výkresov je potrebné brať do úvahy také ukazovatele, ako sú rozmery budúceho stroja a jeho hmotnosť. Tieto hodnoty sú priamo ovplyvnené materiálmi, z ktorých bude zariadenie vyrobené. Dôležité je tiež rozloženie častí.
Poznámka! Pri zostavovaní výkresov je potrebné venovať osobitnú pozornosť upevneniu proti vibráciám, ktoré sú inštalované na nohách.
Montáž kovového rámu pre rezací stroj
Po príprave všetkých nástrojov a výbere výkresov môžete prejsť priamo na proces vytvárania stroja. Použitím oceľový roh, je potrebné urobiť rámovú časť konštrukcie. V súlade s výkresmi, ktoré je možné zostaviť nezávisle alebo nájsť v sieti, sú prvky rámu vyrezané. Všetky sú navzájom spojené zváraním. Najskôr je potrebné skontrolovať súlad veľkostí.
K hornej časti rámu je privarený kanál - stane sa vodiacim prvkom a bude slúžiť ako základ pre ďalšiu inštaláciu rezného komponentu na stroji. Tento kanál sa stane akýmsi spojovacím článkom medzi elektromotorom a rezným prvkom. Potom sú na ňu vertikálne umiestnené stojany pripevnené skrutkami.
Budete musieť zvárať štruktúru iného rámu. Rozmerové parametre sa vyberajú individuálne, berúc do úvahy rozmery elektromotora a jeho vlastnosti. Pri výbere elektromotora pre obrábací stroj je lepšie venovať pozornosť úpravám asynchrónneho typu. Tento typ zariadenia sa vyznačuje zvýšenou spoľahlivosťou a trvanlivosťou.
Pri výbere motora existuje jedna jemnosť. Čím je motor výkonnejší, tým plynulejšia bude jazda disku.
Montáž elektrických komponentov stroja
Inštalácia zariadenia zahŕňa inštaláciu a pripojenie pracovného hriadeľa k elektromotoru stroja. Spôsob, akým sa to dá dosiahnuť, nie je kritický. Ak výkresy obsahujú pokyny na vykonanie tohto postupu, je lepšie sa nimi riadiť, pretože správna prevádzka a spoľahlivosť nástroja závisia od kvality inštalácie.
Užitočná rada! Niektoré diely, ktoré si sami nevyrobíte, je možné objednať z obracača. Patria sem upevňovacie príruby a remenice.
Na pripevnenie motora ku kovovému rámu je lepšie použiť skrutkové spojenie s maticami. V blízkosti motora, kde je umiestnený spínač a elektrický obvod, sa odporúča umiestniť skrinku a tiež diaľkový ovládač na ovládanie náradia.
Kanál určený na fixáciu rezacieho kotúča je najlepšie umiestniť na pružinu. Je potrebné zabezpečiť, aby sa po uvoľnení vrátil na pôvodné miesto. Na zaistenie pružiny môžete použiť skrutky a svorku.
Elektrická súčasť je najdôležitejšou súčasťou prístroja. Nezabudnite do návrhu zahrnúť reťaz na spustenie a tiež tlačidlo na núdzové vypnutie stroja. Je potrebné dosiahnuť také usporiadanie častí, v ktorých bude elektromotor pripojený k elektrickej energii prostredníctvom automatického stroja a skrinky, a nie priamo. Na zapnutie a úplné naštartovanie motora bude stačiť trojprúdový štartér. Taktiež napája vypínacie tlačidlo.
Nakoniec stojí za to postarať sa o dostupnosť ochranných zariadení, ktoré chránia človeka počas práce. Aby ste to dosiahli, musíte si vyrobiť ochranný kryt. Zabráni prenikaniu iskier a malých kovových častíc do očí.
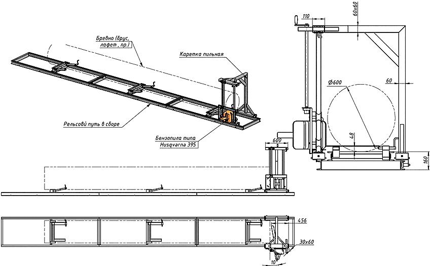
Výroba rezacieho stroja z brúsky vlastnými rukami: výkresy, technológia
Konštrukcie rezacích strojov vyrobených na základe brúsky sú dva typy (v závislosti od umiestnenia brúsky).
V prvom prípade sa získa rám, na ktorom je uhlová brúska veľmi tuho pripevnená. Iba disk stúpa nad pracovnú plochu, pre ktorú je v tabuľke špeciálny slot. Takýto stroj pracuje na princípe kotúčovej píly.
Poznámka! V procese práce s takýmto strojom musíte nezávisle posúvať obrobok, čo je dôvod, prečo sa stráca presnosť práce. Tento proces môže byť navyše nebezpečný, preto nie sú veľmi potrebné výkresy so skrytým typom umiestnenia brúsky.
Druhá možnosť predpokladá, že obrobok zostáva nehybný a rezný prvok sa pohybuje. Pretože je brúska umiestnená na vrchu stolovej dosky, nie je potrebné vyrezávať diely.
Zoznam nástrojov a materiálov pre rezací stroj pre kutily vlastnoručne
Pri vlastnej výrobe nástroja je potrebné mať na pamäti, že presnosť jeho práce závisí vo veľkej miere od stability konštrukcie. Z tohto dôvodu nie je hrúbka materiálov na výrobu spojená ani tak s požiadavkami na pevnosť časti tela stroja, ale skôr s potrebou zabezpečiť správnu úroveň tuhosti.
Zoznam materiálov:
- profilované potrubie so štvorcovým prierezom (2,5x2,5x0,25 cm);
- oceľový plech (hrúbka plechu 0,4-0,5 cm);
- profilované potrubie s obdĺžnikovým prierezom (4x2x0,25 cm);
- guľkové ložiská - 2 ks. (# 203, 204 alebo 202);
- kalibrovaná lišta nie viac ako 10 cm (hrúbka sa vyberá s prihliadnutím na otvor vo vnútornom krúžku ložiska);
- kovová tyč (priemer 0,8-1 cm);
- spojovacie prvky (skrutky s maticami, závit M alebo M8);
- kovová pneumatika (2x0,4 cm).
Zoznam nástrojov:
- uhlová brúska;
- elektrická vŕtačka (môže byť nahradená vŕtačkou);
- nastaviť vŕtačky;
- sada razníc určených na vytvorenie kovového vlákna;
- zváračka;
- karobové kľúče.
Výber správneho rezného nástroja pre domáci rezací stroj z brúsky
Uhlová brúska je hlavnou súčasťou stroja na obrábanie kovov. Odborníci neodporúčajú na tieto účely používať malý nástroj, ktorý má výkon najviac 500-600 W. V takýchto brúskach majú rezacie kotúče priemer nie viac ako 12,5 cm, Tieto obmedzenia sú spôsobené skutočnosťou, že rezací prvok s veľkým priemerom sa považuje za všestranný a veľmi spoľahlivý - je schopný zvládnuť rezanie hrubých obrobkov.
Užitočná rada! Namiesto zvárania je možné na upevnenie dielov použiť závitové spoje, sú však menej spoľahlivé a nemôžu poskytnúť požadovanú úroveň pevnosti.
Je tiež potrebné starostlivo priblížiť výber brúsky, pretože na trhu je široká škála vzorov. Pretože toto elektrické náradie nie je úplne zjednotené, bude sa konštrukcia stroja vykonávať pri určitých úpravách a rozmeroch uhlovej brúsky.
Ak sa stroj pokazí, inštalácia ďalšej brúsky môže byť nielen problematická, ale aj nemožná. Budeme musieť prerobiť kyvadlo a všetky uchytenia. Preto stojí za to zvoliť si nástroj zo sortimentu veľkých a už osvedčených spoločností, napríklad Bosch alebo Makita.
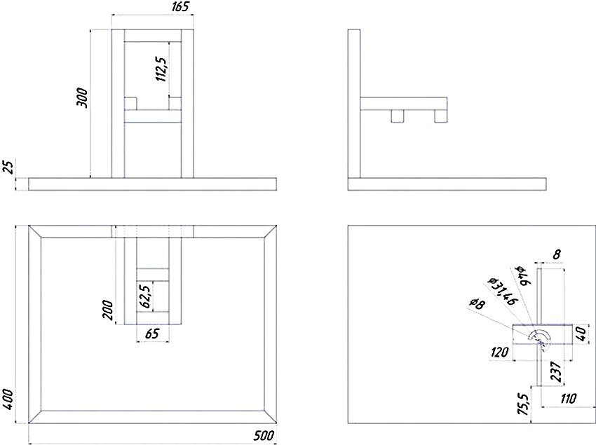
Výkresy rezacích strojov: ako vyrobiť rezací nástroj z brúsky
V prípravnej fáze sa vykonáva návrh a vypracovanie výkresov. Neexistujú jednotné rozmery, pretože konštrukcia každého stroja závisí od konkrétneho modelu rezného nástroja. Hotové výkresy, ktorých je v sieti veľa, je možné upraviť tak, aby vyhovovali brúske. Umožňujú vám navigovať vo vzťahu k tomu, aká bude štruktúra štruktúry, jej rozmery.
Je lepšie začať kresliť výkres s časťou tela. V niektorých prípadoch môže byť potrebné namiesto rámu postaviť samostatnú platformu. Takáto plošina bude pripevnená na zámočníckom pracovnom stole. Ďalej sa určia rozmery a povaha usporiadania uzlových prvkov na stroji. Je potrebné zmerať stredové vzdialenosti medzi montážnymi otvormi umiestnenými na prevodovke a tiež zmerať samotnú brúsku.
Všetky tieto údaje sa používajú na vypracovanie výkresov. Po navrhnutí úchytov kyvadla a brúsky je navrhnutá otočná zostava.
Užitočná rada! Presnosť a tuhosť stroja závisí od vzdialenosti medzi rezným prvkom a otočným kĺbom. Čím je medzera menšia, tým lepšie. Odporúča sa inštalovať kyvadlo s minimálnou dĺžkou.
Po zostavení výkresov zostáva len vyzdvihnúť materiály, vypočítať ich množstvo a pokračovať v stavbe.
Technológia vytvárania rezacieho stroja z brúsky
Technológia výroby stroja na rezanie kovov na báze brúsky je prakticky rovnaká ako v prípade rezací kotúč:
- Príprava a výroba dielov pre rám.
- Usporiadanie otočného kĺbu na kyvadlovom ramene.
- Zhotovenie konzoly v tvare písmena U s otvormi na namontovanie prevodovky brúsky.
- Výroba U-svorky a pruhu, ktorý pripevní telo brúsky na kyvadlo.
- Montáž svorky U a konzoly U k reznému nástroju: zváraním alebo skrutkovaním sú všetky tieto diely pripevnené k dielu konzoly.
- Lisovanie ložísk do podpier.
- Obojstranné lisovanie ložiskových súborov na hriadeľ. Aby ste zvýšili pevnosť spoja, môžete nápravu pocínovať tenkou vrstvou cínu pomocou spájkovačky.
- Upevnenie kyvadla podpornými uzlovými časťami na okraji plošiny (vzdialenosť od okraja 0,5-0,6 cm) pomocou zváracieho stroja.
- Inštalácia brúsky a ochranného krytu.
- Inštalácia vratnej pružiny.
Po zostavení konštrukcie je potrebné vykonať skúšobnú prevádzku a skontrolovať správnu činnosť zariadenia, ako aj umiestnenie všetkých jeho častí. V záverečnej fáze sa drážka nastaví na rezný prvok, nainštalujú sa podpery určené na upevnenie obrobkov.
Po dokončení dokončovania musí byť telo stroja pokryté tenkou vrstvou smaltu. Lakovanie ochráni nástroj pred poškodením, ktoré môže spôsobiť hrdza.
















