Byggingen av en hytte krever en kompetent forberedelse av et forprosjekt. Dette dokumentet er en plan som inneholder alle hovedbestemmelsene som beskriver nyanser av konstruksjon. Hytteprosjekter finner du enkelt på Internett. Å utarbeide en byggeplan selv er en kompleks prosedyre som krever den mest seriøse tilnærmingen. Før du begynner å designe, må du gjøre deg kjent med de viktigste forskjellene mellom hytter og tradisjonelle hus.
Innhold [Hide]
- 1 Hva er forskjellen mellom en hytte og et hus: en sammenligning av bygninger
- 2 Individuelle prosjekter av landsteder og hytter
- 3 Hytteprosjekter: hvilke materialer som kan brukes til å bygge et hus
- 4 En-etasjers husprosjekter: bilder og layoutfunksjoner
- 5 Oppsett av to-etasjes hus: vakre prosjekter og fordelene deres
- 6 Hytteprosjekt med garasje: fordelene med konstruksjon
- 7 Hus-hytte-prosjekt med loft: en universell løsning
- 8 Fundament og takdesign: grunnleggende bestemmelser for ferdige hytteprosjekter
- 9 Noen anbefalinger for å lage et prosjekt for et sommerhus, landsted eller hytte
Hva er forskjellen mellom en hytte og et hus: en sammenligning av bygninger
Et hus er et generelt navn for boligstrukturer (og ikke bare). Den mest omfattende gruppen av boligbygg inkluderer landhus. Slike bygninger er små i størrelse og er ikke alltid utstyrt med verktøy. Materialene som brukes til å bygge slike hus kan være forskjellige (murstein, betong, tre, etc.).
Hvis vi snakker om hytter, er det bygninger som består av 1 eller 2 etasjer. Slike bygninger er tilpasset for permanent opphold i dem. Det er viktig å huske at andre etasje i dem er representert av et loftrom som ligger under takbakken. Bilder av hyttene lar deg bekrefte dette.
Den klassiske versjonen av hytta har bare 2 rom. Slike bygninger er egnet for en liten familie å bo i dem. Hytter er praktisk talt ikke funnet i byen. Ofte kan slike bygninger sees i landsbyer.
Den vanligste tradisjonelle hytta består av 2 etasjer og har kjøkken og stue på 1 plan. Dermed er loftet reservert for soverom. Et annet populært prosjekt av denne typen hus er en enetasjes bygning. I dette tilfellet tar bygningen mer plass på stedet, som bør tas i betraktning når du velger en type struktur.
Nyttig informasjon! Innenlandske hytter har ofte større betydning enn deres europeiske kolleger.
En slik løsning gjør det mulig å plassere flere rom i en bygning (sammenlignet med et vanlig hus). Eksperter identifiserer flere faktorer som gjør det mulig å bestemme konstruksjonstypen. For det første er forskjellene mellom disse bygningene i deres område.
Arealet til landsteder er mindre og overstiger sjelden 100 m². Når det gjelder hyttene, varierer dimensjonene fra 100 til 500 m². Bygninger over 500 m² regnes som herskapshus. Bilder av forskjellige ferdige prosjekter av hytter hjelper til med å vurdere forskjellene mellom disse bygningene og vanlige boligbygg.
Det er vanlig å plassere hytter i umiddelbar nærhet av bygninger som tilhører samme type. I sin tur kan et landsted reises hvor som helst. For å velge ønsket type struktur anbefales det å studere ferdige bilder av hus. Prosjekter og tegninger som er inkludert i dem kan lastes ned på Internett eller bestilles fra spesialister.
Det er også verdt å merke seg at territoriet der et privat hus ligger, ofte brukes til å plassere en hage og en grønnsakshage på den. For hytter er en liten forhage mer egnet. Moderne konstruksjon lar deg konvertere et landsted til en hytte, så disse to bygningstyper kalles ofte med ett ord - "hus".
Individuelle prosjekter av landsteder og hytter
Foreløpig kan alle finne et ferdig prosjekt av en hytte eller et landsted på nettverket, så det er slett ikke et obligatorisk byggepunkt å utarbeide en individuell plan. Imidlertid er det situasjoner der dette alternativet ikke kan implementeres. La oss vurdere hvilke faktorer som påvirker behovet for å utvikle et individuelt prosjekt.
Hovedårsaken til at det er behov for å lage en spesiell plan, ligger i funksjonene til avlastningen av stedet på stedet for fremtidig konstruksjon. For eksempel kan området være skrånende. Det hender ofte at det er umulig å gjennomføre et standardprosjekt på grunn av det naturlige reservoaret som ligger på stedet.
Og det er også nødvendig med en individuell plan for et landsted i tilfelle eierne ønsker å oppfylle en ikke-standard idé eller for eksempel kombinere alle husstrukturer på stedet.
Merk! Noen ganger skyldes utarbeidelsen av en individuell plan den økonomiske gjennomførbarheten av denne avgjørelsen. Dette lar deg maksimere prosjektet og redusere kostnadene ved å bygge en hytte.
Før du begynner å lage en slik plan, må du gjøre deg kjent med hovedstadiene i dette arbeidet.
I begynnelsen fører klienten som regel en diskusjon med arkitekten. På dette stadiet blir alle nyanser av konstruksjonen tatt i betraktning, som husets område, dets dimensjoner osv. Deretter velges den mest passende utformingen av lokalene inne i bygningen. Deretter utvikles fasadetegning og en generell byggeplan. Hytteprosjektet må nødvendigvis ta hensyn til estimatet, som indikerer alle nødvendige kostnader.
I neste trinn lages en arkitektonisk plan, som er et album som inneholder tegninger og tegninger. Den endelige prosjekteringsfasen inkluderer utarbeidelse av arbeidsdokumentasjon som regulerer byggeprosedyren.
En individuell plan er et dokument som har mange fordeler fremfor ethvert standardprosjekt. Det er veldig viktig at det i dette tilfellet tas hensyn til alle kundens ønsker.
Hvordan begynne å tegne en hytteplan og konstruksjon
Tilstedeværelsen av en tomt lar deg bygge et vakkert hus i det, bygget i henhold til en standard eller individuell plan. Mange er interessert i spørsmålet om hvor du skal begynne å jobbe med å lage et prosjekt.
Det er nesten umulig å utarbeide et slikt dokument på egenhånd, siden dette krever omfattende kunnskap som dekker flere byggeområder. Det er best å søke kvalifisert hjelp fra spesialister i et designbyrå. Sammen med fagpersoner utføres valget av det beste husprosjektet, mens muligheten til å ta hensyn til særegenheter ved territoriet og kundenes økonomiske evner blir realisert.
Det tar vanligvis flere uker å lage en spesiell plan. Etter å ha tegnet prosjektet som er optimalt for en bestemt situasjon, kan du starte byggearbeid.
Hvis du ønsker det, kan du bruke et gratis hytteprosjekt. Det er ganske mange standardiserte ferdige løsninger på nettet. Dette vil spare økonomi, siden du i dette tilfellet ikke trenger å betale arkitekter.
Merk! I den innledende konstruksjonsfasen må det ansettes et team av utførere. Prosessen med å oppføre en arkitektonisk struktur må kontrolleres av designere hvis tjenestene deres ble betalt før arbeidet startet.
Hytteprosjekter: hvilke materialer som kan brukes til å bygge et hus
Det vanligste materialet som brukes i konstruksjon i dag er murstein. Bruken lar deg bygge en solid og pålitelig struktur som vil stå i mer enn et tiår. Den største fordelen med slike hus er holdbarhet, og deres solide utseende er også verdt å merke seg.
Prosjekter av vakre mursteinshytter lar deg se fordelene med dette materialet. Det er flere typer murstein som avviker i farge. Dette gjør det mulig for alle å velge det nødvendige alternativet, med tanke på personlige krav.
Et annet vanlig materiale som brukes i bygging av hytter er stein. Dette naturlige materialet har ganske høye kostnader, men det er en kunstig analog, hvis pris er mye lavere. Samtidig er de tekniske egenskapene til kunstig stein ikke verre. Bygninger konstruert av dette materialet er preget av presentabelt utseende, utmerket varmelagring og lang levetid.
I katalogene over hytteprosjekter er det ofte muligheter for bygninger laget av tre. Trehus er miljøvennlige strukturer og kan opprettes av forskjellige typer råvarer. Materialet som brukes er avrundede tømmerstokker eller limte bjelker, som dukket opp relativt nylig.
Bruk av rammekonstruksjonsteknologi gjør det mulig å redusere de totale kostnadene for byggeprosjektet. I dette tilfellet oppfordres kombinasjonen av forskjellige byggematerialer. Fordelen med slike bygninger er den hurtige konstruksjonshastigheten.
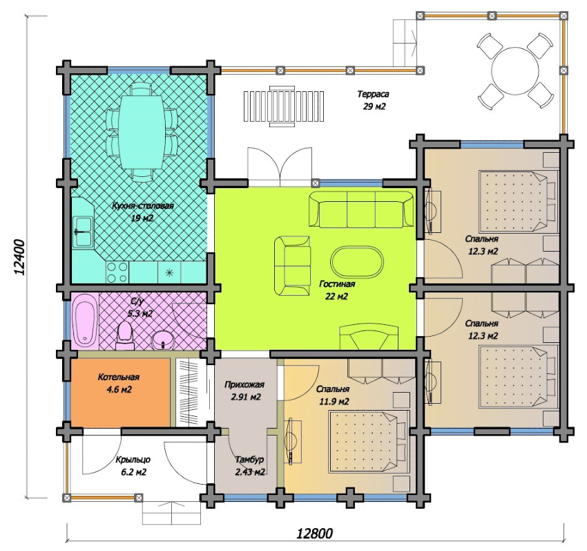
En-etasjers husprosjekter: bilder og layoutfunksjoner
Når du velger dette alternativet, er det nødvendig å ta hensyn til at et betydelig område vil være nødvendig for å lage en hytte i en etasje. Dermed kan vi konkludere med at dette bygget ikke er en vinnende løsning for små områder. Før du starter byggingen av en hytte, er det nødvendig å på forhånd bestemme antall uthus som skal ligge på stedet, samt beregne arealet til hovedstrukturen.
Hvis territoriet lar deg fullføre en hytte i en etasje, kan du begynne å utvikle prosjektet.Den største fordelen med en slik bygning er lavere kostnader sammenlignet med to-etasjes strukturer.
Når du tegner prosjekter med en-etasjes hus og hytter, må du være oppmerksom på flere punkter. Når du utarbeider en slik plan, er det vanlig å skille mellom bolig- og bruksdelene av bygningen. Følgende rom anses tradisjonelt å være bolig:
- soverom;
- barn;
- kontorer.
I sin tur bør vaskerom være plassert på motsatt side av huset. Disse inkluderer stue, bad og kjøkken. En hytte i en etasje har også andre fordeler. For eksempel trenger en slik struktur et mindre solid fundament.
Merk! Dimensjonene på bygningen og nyansene i utformingen har innvirkning på plasseringen av tekniske systemer i et slikt hus. Når du tegner et prosjekt for en enetasjes hytte, er det ikke behov for komplisert kabling av kommunikasjon. Et annet pluss er den tette plasseringen av stuer og vaskerom i forhold til hverandre.
Området i et enetasjes hus kan brukes mer rasjonelt. I noen tilfeller er store rom (for eksempel en stue) delt inn i funksjonelle segmenter. Sonering av det brukbare rommet lar deg oppnå maksimal funksjonalitet i rommet.
Relatert artikkel:
Hytte: bilder av attraktive landsteder i forskjellige stiler
Regler for utarbeidelse av et prosjekt. Viktige detaljer, designtips. Standard og original designtilnærming.
En-etasjes hytter, som alle andre arkitektoniske strukturer, har sine ulemper. Noen gratis hytteprosjekter har ikke den beste utformingen. Som et resultat kan enkelte rom vise seg å være gjennomgang, noe som vil påvirke komforten ved å bo i denne bygningen negativt.
Når du oppfører en slik bygning, må du være spesielt oppmerksom på taket. I dette tilfellet vil takområdet være større, så arrangementet vil kreve ganske imponerende kostnader.
Oppsett av to-etasjes hus: vakre prosjekter og fordelene deres
Utvalget av forskjellige designløsninger er for tiden utrolig bredt. Valget av den mest egnede er en ansvarlig hendelse som krever å ta hensyn til mange faktorer. To-etasjes hytter er forskjellige fra enetasjes bygninger. For ikke å ta feil av deg når du velger en bygningsplan, anbefales det å studere funksjonene til denne typen konstruksjon.
Først og fremst skal det bemerkes at valget av et toetasjes hytteprosjekt er egnet i tilfelle når det ikke er nok plass på stedet for bygging av en enetasjes bygning.
Du kan gjøre noen endringer i et standardprosjekt hentet fra nettet. Imidlertid bør justering av bygningens planleggingsfunksjoner ikke skade konstruksjonens pålitelighet.
Byggingen av en hytte, som har to nivåer, lar deg maksimalt lagre området på stedet og bruke det til bygging av uthus og andre bygninger. To-etasjes strukturer ser mer presentabelt og koselig ut, og flere muligheter for designimplementering åpner seg. En tegning av denne hytta kan inneholde en balkong dekorert med en balustrade. I dette tilfellet er det mange flere arkitektoniske løsninger for fasadebehandling.
Den mest egnede løsningen for bruk av andre etasje er tilrettelegging av soverom og et bad på den. Oppsettet av det første nivået innebærer plassering av stue, kjøkken, bad og boder.
Nyttig informasjon! Ved å bruke en gratis hustegning kan du spare økonomi.Kostnadene ved å bygge en to-etasjes hytte er ganske imponerende, så for å spare penger anbefales det å velge en standardplan. Men dette alternativet er bare akseptabelt hvis egenskapene til nettstedet er egnet for bygging av en tradisjonell struktur.
Hytteprosjekt med garasje: fordelene med konstruksjon
Det mest populære hyttealternativet tar hensyn til tilstedeværelsen av en garasje, som kan være en utvidelse av boligen. Denne løsningen har mange fordeler. Garasjen, som har en felles vegg med hytta, lar deg rasjonelt fordele den brukbare plassen på stedet.
Det skal også bemerkes at det å ha en felles vegg eliminerer behovet for å gå utenfor. Du kan komme til en slik utvidelse rett hjemmefra, noe som er veldig praktisk. Når du tegner en prosjekttegning for et hus med garasje, er det nødvendig å ta hensyn til at utvidelsen krever tilstrekkelig mengde ledig plass. I tillegg trenger du plass til å organisere den mest praktiske inngangen.
Frittliggende garasjer er upraktiske ved at de trenger et individuelt oppvarmingssystem. Selvfølgelig er det mye lettere å koble bygningen til den vanlige bygningskommunikasjonen. I tillegg kan denne typen garasje utstyres med vaskerom eller bod.
Prisen på et hytteprosjekt med garasje vil være høyere hvis du bestiller arkitekturdokumentasjon fra spesialister. Imidlertid lønner kostnadene for slik planlegging seg over tid. Moderne muligheter i byggebransjen lar deg utstyre en funksjonell og komfortabel hytte med en garasjeutvidelse, som ikke bare ikke ødelegger utformingen av bygningen, men også understreker den.

Prisen på et hytteprosjekt med garasje vil være høyere hvis du bestiller arkitekturdokumentasjon fra spesialister
Hus-hytte-prosjekt med loft: en universell løsning
For å få et to-etasjes hus, er det ikke behov for obligatorisk bygging av andre nivå. Moderne bygninger sørger for tilstedeværelse av stuer under takområdet, som brukes på den mest funksjonelle måten. Du kan tydelig vurdere fordelene med en slik arkitektonisk løsning ved å studere bilder av gratis prosjekter og tegninger av hyttehus.
Første og andre nivå i dette tilfellet kommuniseres av en trapp. Denne arkitekturen er veldig populær i England og mange andre europeiske land, da den er preget av enkelhet, bekvemmelighet og funksjonalitet.
Merk! Plassen under skråtaket kalles i dette tilfellet loftet. Oftest ligger soverom og kontorer i andre etasje i slike hytter. Det er mange forskjellige prosjekter av hytter med loft. Når du velger en plan, må du ta hensyn til takets form.
Ulempen med denne versjonen av en hytte er at lokalene som er utstyrt under taket vil ha skråtak. Imidlertid, med riktig innredning, kan dette minus enkelt gjøres om til en annen fordel.
Loftet kan ordnes ikke bare i en murstein, men også i en trehytte. Prosjektet er utarbeidet under hensyntagen til byggekoder og forskrifter. Eventuelle avvik fra dem kan føre til konstruksjonsfeil.
En boligbygning med loft under taket er en utmerket løsning som lar deg spare og øke bygningens totale areal. Om ønskelig kan en balkong festes til fasaden på huset, som har inngang fra loftet.
Fundament og takdesign: grunnleggende bestemmelser for ferdige hytteprosjekter
For å velge riktig type fundament for en hytte, må du først studere jordfunksjonene på stedet.Ethvert prosjekt må nødvendigvis inneholde informasjon om belastningen på fundamentet. Det vanligste fundamentet som brukes i husholdningskonstruksjon er stripefundament.
Prosjektet skal inneholde informasjon om kommunikasjon som skal legges til huset, utenom grunnmurene. Du bør være veldig forsiktig når du velger gratis prosjekter for hus og hytter. Tegninger og bilder av ferdige boligbygg samsvarer ikke alltid med stedets individuelle egenskaper.
Murstein er et klassisk materiale for bygging av vegger, men nylig har posisjonen i byggemarkedet blitt svekket. Hus laget av skumbetong og luftbetong er populære i dag. Dette skyldes den lave varmeledningsevnen til disse materialene.
Når det gjelder taket, har det oftest to bakker. Skjulte tak er også funnet. For bygging av sperrer brukes en trebjelke, og kassen monteres fra brett. Eksperter anbefaler å bestille nøkkelferdige hytteprosjekter. Å lage og implementere en slik plan krever spesiell kunnskap og ferdigheter, derfor er det uønsket å engasjere seg i disse typer arbeid uavhengig.
Myke helvetesild blir ofte brukt som materiale for taket. På andreplass er metallanalogen til dette materialet. Et metalltak er lettere å organisere. Denne designen anbefales av eksperter som et pålitelig og holdbart belegg.
Noen anbefalinger for å lage et prosjekt for et sommerhus, landsted eller hytte
Hytteprosjektet, som nevnt ovenfor, kan enkelt finnes og lastes ned på nettet. Før du fortsetter implementeringen, er det nødvendig å avgjøre hvordan denne planen best samsvarer med egenskapene til et bestemt nettsted. I dette tilfellet bør man ta hensyn til slike individuelle egenskaper ved territoriet som lettelse, jordsammensetning og tilstedeværelse av grunnvann.
Gratis prosjekter av hus og hytter er ikke alltid egnet i et bestemt tilfelle. Som et resultat blir det nødvendig å lage en individuell plan. Du bør ta hensyn til hovedbestemmelsene som dette dokumentet inneholder:
- bestemmelse av byggeplassen;
- boligbygging område;
- byggematerialer som skal brukes under byggingen av hytta;
- type bygning base;
- lokalisering av verktøy.
Nyttig informasjon! Prosjekter av moderne hytter tar også hensyn til muligheten for den påfølgende ordningen av en boligbygning. Dette er veldig viktig i tilfelle det i fremtiden er planlagt å endre oppsettet eller oppføre uthus i eller i nærheten av huset.
Kostnaden for å lage et enkelt prosjekt avhenger av mange faktorer. Den endelige figuren er først og fremst påvirket av bygningens område. Kostnadene for prosjekter er angitt i rubler og starter fra 300 rubler. for 1 m². Det er verdt å merke seg at dette gjelder arkitektur- og konstruksjonsplanlegging, som inneholder absolutt all nødvendig informasjon om den fremtidige konstruksjonen. Det er også billigere prosjekter. Prisen på en totalhytte og den foreløpige utviklingen av en individuell plan for den, avhenger også av tariffene til selskapet som eierne av nettstedet kontaktet.
Når du velger utformingen av en fremtidig bygning, anbefales det å ta hensyn til typen terreng. For eksempel, hvis området ligger i nærheten av skogen, bør du velge et hytteprosjekt fra en bar eller tømmerstokker. Og til slutt kan den ferdige planen alltid gjøres om. Tilpasningen av et standard byggeprosjekt til de individuelle egenskapene til et bestemt område praktiseres ganske ofte.
Når du velger et hytteprosjekt, må du ta hensyn til mange nyanser. Temperaturen i regionen, avstand fra byens grenser, egenskapene til territoriet og andre faktorer påvirker valget av arkitektonisk dokumentasjon. Det beste alternativet er å bestille et individuelt prosjekt fra fagpersoner.






















