Ispravno planiranje gradnje ogleda se u konačnom rezultatu. Projekt kuće od opeke uključuje nekoliko dokumenata koji sadrže sve podatke potrebne za izgradnju zgrade. Takav plan možete sami izraditi ili upotrijebiti gotovu verziju preuzetu s Interneta. Tijekom izrade projekta vrijedi razmotriti sve građevinske propise i propise, kao i arhitektonske zahtjeve.
Sadržaj [Hide]
Koje su prednosti gradnje kuća od opeke
Opeka je materijal koji je vrlo izdržljiv. Konstrukcije izrađene od njega imaju dug vijek trajanja. Pouzdanost struktura od opeke provjerena je vremenom. Važno je zapamtiti da zidovi od takvog materijala pružaju razmjenu zraka, što pridonosi stvaranju povoljne mikroklime u stambenim prostorijama.
Još jedna prednost takvog materijala je što ima prilično široke umjetničke mogućnosti. Da biste se u to uvjerili, samo trebate pogledati fotografiju takvih fasada. Cigla za ukras također je čest materijal. Širok raspon boja i tekstura omogućuje svakoj osobi da odabere uzimajući u obzir individualne karakteristike zgrade.
Uz pomoć opeke možete izgraditi strukturu i u klasičnom i u modernijem stilu. Gotovo svi arhitektonski smjerovi kompatibilni su s ovim materijalom. Prednost zidova od opeke je njihova otpornost na vatru. Vatrogasne osobine povećavaju sigurnost zgrada.
Bilješka! Pri odabiru kvalificirane tvrtke za programere, sav posao obavlja se vrlo brzo i kvalitetno po principu "ključ u ruke". Kuću od cigle možete izgraditi na gotovo bilo kojem mjestu.
Još jedna prednost ovog materijala je njegova otpornost na nepovoljne čimbenike okoliša. Tehničke karakteristike opeke osiguravaju visoku otpornost na atmosferske padaline, vjetar i temperaturne fluktuacije.
Vikendice od opeke i privatne kuće što su ugodnije.Odlikuje ih prezentativan izgled. Ekološka prihvatljivost takvih zgrada također se smatra glavnom prednošću.
Dakle, zgrada od opeke izvrsna je opcija za bilo koju regiju. Prilikom izrade projekta buduće zgrade moraju se uzeti u obzir mnoge nijanse. Vrlo je važno proučiti neke negativne aspekte takvog materijala. To će vam omogućiti da procijenite izvedivost gradnje takve kuće.
Nedostaci gradnje kuća od opečnog materijala
Zidana zgrada izgleda čvrsto i strogo. Ona utjelovljuje pouzdanost i udobnost. Međutim, ovaj materijal ima neke negativne aspekte na koje treba obratiti pažnju. Glavni nedostatak je visoka cijena kuće od opeke. Upravo je cijena često odlučujući faktor pri odabiru građevinskih materijala.
Zidovima od opeke potrebna je dodatna izolacija. Kuća je izolirana i iznutra i izvana. Ako želite, možete i bez izolacije, ali to će zahtijevati izgradnju debelih zidova, što će utjecati na konačni trošak projekta. Pri provedbi projekta za kuću od opeke s potkrovljem, izolacija je nužna u svakom slučaju, uključujući izolaciju unutarnje strane krova.
Još jedan nedostatak zgrada od opeke je higroskopnost ovog materijala. Ovo svojstvo određuje upijanje proizvoda. Vlaga koju cigla upije iz zraka loše utječe na njegove tehničke karakteristike i smanjuje njezin radni vijek.
Konačna cijena kuće od opeke također uključuje troškove potrebne za organizaciju pouzdanog temelja. Ovaj je dizajn vrlo težak i stoga zahtijeva snažne temelje.
Unatoč svim nedostacima povezanim s gradnjom takvih zgrada, kuće od opeke i dalje zauzimaju vodeću poziciju na tržištu nekretnina. Ovaj se materijal može koristiti za izgradnju ne samo stambene zgrade, već i pomoćnih gospodarskih zgrada.
Tipični i pojedinačni projekti kuća od opeke
Gotov projekt uključuje nekoliko komponenata. Prije svega, uključuje dokumentaciju koja sadrži sve potrebne informacije o materijalima koji će se koristiti u gradnji kuće. A također projekt ima informacije koje vam omogućuju izradu korak-po-korak izgradnje i registraciju gotovog objekta.
Ako postoji potreba za izvođenjem svih radova u najkraćem mogućem roku, upotreba gotovog projekta kuće od opeke pomoći će uštedjeti vrijeme. Tipični planovi uključuju sve potrebne informacije, ali pri njihovom odabiru budite oprezni. To je zbog činjenice da neki projekti možda neće odgovarati individualnim karakteristikama mjesta na kojem će se izvoditi gradnja.
Bilješka! Standardne opcije projekta mogu se naći na specijaliziranim web mjestima na Internetu. Dovoljno je unijeti odgovarajući upit u traku za pretraživanje preglednika. Ako projekt ne odgovara teritorijalnim obilježjima određenog mjesta, tada možete kontaktirati stručnjake koji će vam pomoći da ga ispravite.
Tipični projekti vikendica od opeke, kao i privatnih kuća, mogu se revidirati u skladu s određenim preferencijama. Ako želite, možete izmijeniti mjesto otvora prozora i vrata. Dopušteno je prilagoditi njihovu veličinu i oblik. Također možete promijeniti putove inženjerskih komunikacija (električni vod, vodoopskrba itd.).
Ako je potrebno, gotovi projekt dopunjuje se novim dizajnerskim rješenjima.Unutar takve zgrade možete instalirati, u skladu s prethodno pripremljenim projektom, pećnicu od opeke. Cijena za kuću i ljetnu rezidenciju takve grijaće strukture ovisi o značajkama njegovog dizajna.
Potpuno individualni projekt gradnje razvija se samo u ekstremnim situacijama. Na primjer, ako nije moguće instalirati strukturu sa standardnim karakteristikama, kao i na zahtjev kupca. Vrijedno je zapamtiti da je stvaranje takvog plana prilično dugotrajno i skupo.
Kako izraditi projekt za kuću od opeke
Prvo što treba učiniti prije izrade projekta za zgradu od opeke proučiti značajke teritorija na kojem će se izvoditi građevinski radovi. Vrlo je važno odrediti vrstu tla, jer o ovom kriteriju ovisi koji je temelj potreban za buduću stambenu zgradu. Moraju se uzeti u obzir i druge značajke zemljišne čestice, koje uključuju:
- mogući nagib stranice;
- mjesto cesta i dolazaka;
- dubina podzemne vode.
Projekti vikendica od opeke i privatnih kuća uzimaju u obzir sve sitnice koje mogu utjecati na izgradnju. Ako je tlo na mjestu nestabilno i protočno, tada je potrebno odabrati odgovarajuću podlogu. U ovom se slučaju ne koristi monolitni tip temelja. Izbor se vrši između stupastih i pločastih struktura.
Prije početka rada sastavlja se dijagram mjesta. Sadrži informacije o položaju stambenih zgrada, kao i kućanskih objekata. Potrebno je označiti sve strukture, poput bunara, septičke jame itd. A također je potrebno naznačiti hoće li zidovi kuće od opeke biti izolirani izvana ili iznutra.
Bilješka! Visoka razina podzemne vode zahtijeva organizaciju sustava koji će odvoditi vodu s mjesta. Ta se komunikacija naziva drenaža.
Prilično uobičajena opcija je stvaranje projekta za kuću od opeke s garažom. U ovom slučaju određuju se vrsta garaže, njegove dimenzije i druge karakteristike, među kojima vrijedi istaknuti elemente dizajna. Prolaz do zgrade mora biti slobodan. Sve se to uzima u obzir u projektnoj dokumentaciji koja se dogovara s kupcem.
Koja je dokumentacija potrebna za punopravni projekt vikendice od opeke
Sva dokumentacija potrebna za provedbu projekta izgradnje cigle podijeljena je u tri dijela. Prvi odjeljak naziva se arhitektonskim. Uključuje opće podatke koji uzimaju u obzir osobitosti izgleda strukture. Ostali dijelovi također su predmet proučavanja, jer to pomaže razumjeti pitanje kako izgraditi kuću od opeke po sistemu "ključ u ruke". Cijena gotove zgrade ovisi o složenosti projekta. Arhitektonski dio projekta uključuje sljedeće podatke:
- tlocrti;
- arhitektonski dijelovi;
- prednja strana zgrade;
- plan krova;
- objašnjenje.

Projekt se sastoji od tlocrta i krovnog plana, arhitektonskih dijelova, pročelja zgrade i upute za objašnjenje
Drugi dio je konstruktivni odjeljak. Uključuje crteže podova, rešetkastih konstrukcija, kao i ogradne i noseće zidove. U kućama od opeke najčešće se izrađuju guste pregrade koje mogu izdržati velika opterećenja. Ovdje se također uzimaju u obzir značajke zidanja.
Posljednji odjeljak naziva se inženjerstvo. To je zbog činjenice da sadrži informacije o svim vitalnim sustavima koji će se položiti unutar zgrade. Među njima su sustavi vodoopskrbe, kanalizacije, grijanja i ventilacije, kao i električni vod.
Povezani članak:
Projekti modernih kuća: jednostavnost u skladu s funkcionalnošću
Značajke i prednosti kuća u modernom stilu. Faze dizajna. Samostalno stvaranje projekta. Primjeri gotovih kuća.
Kako izraditi projekt za jednokatnu kuću od opeke
Kako bi se osigurala maksimalna udobnost življenja u budućoj ciglenoj zgradi, potrebno je u fazi projektiranja odrediti broj soba i njihove dimenzije. Ti su podaci obvezno zabilježeni u projektnoj dokumentaciji. Relativni položaj pojedinih soba vrlo je važna točka koja zahtijeva pažljivo proučavanje.
Arhitekt je dužan saslušati želje kupaca i ispuniti ih, ako nisu u suprotnosti s građevinskim propisima i propisima. Projekt kuće od opeke po sistemu ključ u ruke, koja se sastoji od samo jednog sloja, zahtijeva ispravnu raspodjelu korisne površine. Da bi se postigla maksimalna funkcionalnost iz unutarnjeg prostora ciglene jednokatnice, u pravilu se smanjuje broj hodnika i prolaznih prolaza.
Korisne informacije! Prilikom projektiranja jednokatnice, također morate uzeti u obzir da trebate smanjiti broj soba. Usklađenost s ovim pravilom pojednostavljuje optimizaciju prostora u kući od opeke. Izgradnja projekta po sistemu ključ u ruke zahtijeva velike troškove koji su također zabilježeni u posebnom dokumentu - procjeni.
Postoji nekoliko uobičajenih načina za povećanje korisne površine u jednokatnici. Na primjer, velike sobe mogu se podijeliti u funkcionalne zone, a u ovom je slučaju vrlo popularna opcija uređenja potkrovlja. Izvrsno rješenje je projekt kuće od opeke s dnevnim boravkom, koja se nalazi ispod krova.
Kada planirate jednokatnu strukturu od opeke, vrijedi razmotriti za što će se koristiti. Ako se u takvoj kući planira stalni boravak, tada se to izvodi drugačije od, na primjer, ladanjske kuće. Također je vrijedno napomenuti da su projekti kuća od opeke s podrumom popularni zbog širenja korisnog prostora.
Primjeri tipičnih projekata jednokatnih kuća od opeke
Izbor broja katova provodi se prvenstveno ovisno o individualnim karakteristikama teritorija na kojem će se odvijati građevinski radovi. Procijenjeni broj stanovnika također utječe na određivanje kata.
Jednokatne zgrade od opeke često se biraju iz razloga ekonomičnosti. Troškovi izgradnje kuće od opeke ove vrste približno su dva puta niži od troškova izgradnje dvokatne strukture. Dimenzije stranice također se uzimaju u obzir pri odabiru broja slojeva.
Do danas su programeri identificirali nekoliko standardnih opcija kuća koje nude maksimalnu funkcionalnost. Da biste odabrali prikladnu zgradu, morate se upoznati s tipičnim zgradama s različitim područjima.
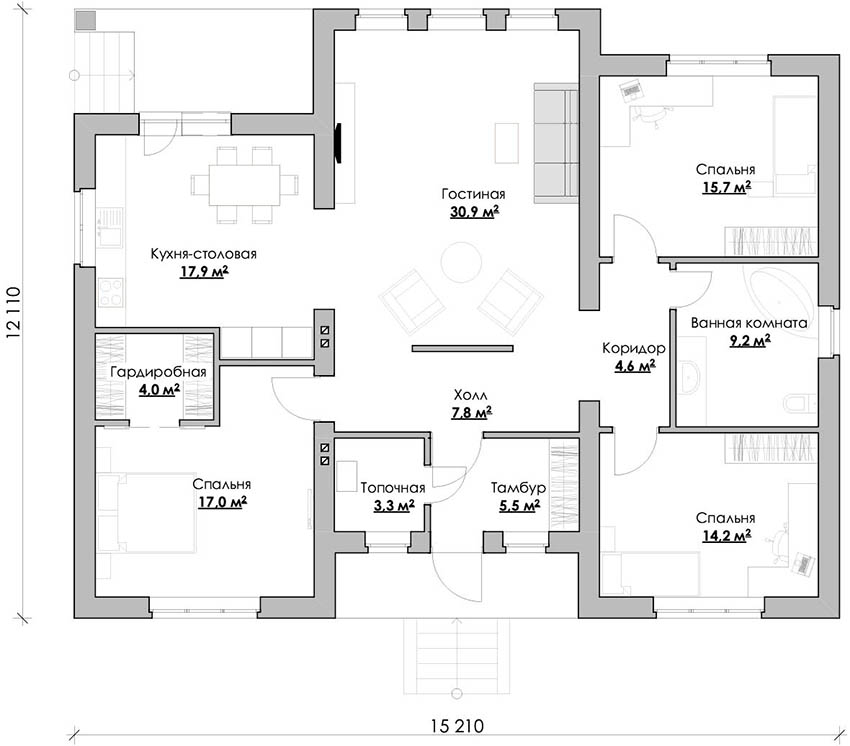
Jedna od najčešćih standardnih vrsta jednokatnih zgrada od opeke je kuća dimenzija 6 x 9 m. Takva se struktura može proširiti proširenjem. Uz nju je često garaža. Projekt kuće od opeke takvih dimenzija ima sljedeći tipičan raspored: dnevni boravak, veranda, kupaonica, kuhinjska soba, a također i 2 spavaće sobe. Ponekad se broj spavaćih soba može povećati na 3, ali ovo rješenje zahtijeva obveznu prisutnost verande.
Još jedna tipična opcija je zgrada veličine 8 x 10 m. Ova zgrada ima tradicionalni pravokutni oblik. Podrumski pod smatra se obveznim atributom ove strukture. Krov takve građevine najčešće je visok. To je neophodno kako bi se pojednostavila organizacija potkrovlja ispod.Slična soba može se opremiti kao spavaća soba ili osobni ured. Ovo rješenje oslobodit će maksimalnu količinu prostora na prvom sloju.
Bilješka! Preporuča se odabrati jednokatnice s potkrovljem za parove bez djece ili s jednim djetetom.
Ne manje popularan je projekt kuće 9 x 9 m. U ovom se slučaju broj spavaćih soba povećava na 5. Prisutnost dodatnog prostora omogućuje vam opremanje spremišta i garderobe.
I, konačno, još jedna mogućnost je kuća od 12 x 12 m. Takva jednokatnica ima veliku količinu korisnog prostora, što vam omogućuje da na nju primijenite najprikladniji raspored. Zgrada ovog tipa gradi se bez potkrovlja. Fotografije projekata kuća od opeke s takvim područjem lako se mogu naći na Internetu. Unutarnji prostor takve građevine podijeljen je u dvije zone. Prva uključuje sve potrebne pomoćne prostorije, a druga je predviđena za uređenje osobnog prostora stanovnika.
Projekt dvokatne kuće od opeke: značajke stvaranja
Za izgradnju dvokatne zgrade od opeke bit će potrebno više materijala, što će sigurno utjecati na financijske troškove. Međutim, takva struktura opravdava svoju cijenu. U nekim je slučajevima izgradnja takve zgrade jedino ispravno rješenje. Na primjer, to se događa u situaciji kada dimenzije mjesta ne dopuštaju izgradnju u širinu.
Drugi kat eliminira ograničenja planiranja svojstvena jednokatnim zgradama. Prije početka građevinskih radova potrebno je izraditi projekt. Fotografije kuća od opeke ove vrste omogućuju vam da cijenite njihove prednosti.
Standardni raspored uzima u obzir smještaj spavaćih soba na drugom katu. Područje drugog sloja također se koristi za opremanje radnog područja. Zauzvrat, dnevni boravak, kuhinja i blagovaonica nalaze se u prizemlju.
Dvokatna zgrada s potkrovljem nije uvijek dobar izbor. To je zbog činjenice da ugradnja odgovarajućeg krova i opskrba komunalnim uslugama do treće razine mogu značajno utjecati na konačni trošak gradnje.
Kuća koja ima dovoljnu površinu omogućuje vam da ne brinete o debljini zidova. U kući od opeke, pregrade nosivog tipa, u pravilu, sastoje se od tri reda opeke i zauzimaju prilično puno prostora.
Bilješka! Dvokatnica je najbolja opcija. Takva kuća održava ravnotežu između financijskih troškova i korisnog prostora, što omogućuje izvedbu kompetentnog rasporeda.
Projekt ciglene dvokatnice: raspored i dimenzije zgrade
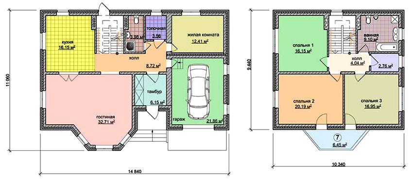
Mnogi se ljudi pitaju koje bi optimalne dimenzije trebale biti za dvokatnu strukturu od opeke. Izbor veličine ovisi o mnogim čimbenicima. Prije svega, vrijedi uzeti u obzir broj stanovnika. Za obitelj od 3-6 osoba zgrada od 140-160 m² idealna je. U takvoj kući možete smjestiti sve potrebne kućanske i osobne prostore.
Struktura sličnih dimenzija sadrži prostrani dnevni boravak, 3 spavaće sobe, kuhinju i 2 kupaonice. Usredotočujući se na cijenu kuće od opeke po sistemu ključ u ruke, potrebno je izraditi projekt. Prvo, razmotrite značajke izgleda prvog kata.
Područje prvog reda takvog stana sasvim je dovoljno za opremanje velike dnevne sobe. Preporuča se podijeliti u zasebna funkcionalna područja. Studio u dnevnoj sobi najčešće uključuje prostor za kuhanje i blagovaonicu.Ako projekt kuće predviđa prisutnost terase, tada je najbolja opcija organizirati izlaz na nju iz dnevne sobe.
Fotografije projekata kuća od opeke omogućuju vam da cijenite prednosti dvokatnih struktura. U prizemlju se nalaze i sadržaji poput gostinske spavaće sobe i ostave. Značajke rasporeda takvih zgrada omogućuju vam stvaranje jedinstvenog, prostranog doma. Pri izradi projekta ne treba zaboraviti na građevinske propise i zahtjeve. Na drugom katu mogu se smjestiti tri spavaće sobe, na primjer dvije za djecu i jedna za gostinjsku sobu, kao i kupaonica. U pravilu su takve zgrade dizajnirane zajedno s terasom.
Projekti kuća od opeke "ključ u ruke" i cijene za njihovu provedbu
Prije početka gradnje potrebno je izračunati financijske troškove, uključujući pomoćne. Cijena i dizajn kuće od opeke izravno su povezani. Osim kupnje materijala, plaćanja projekta i rada obrtnika, morat ćete uzeti u obzir i druge troškove, kao što su:
- čišćenje mjesta;
- poravnanje stranice;
- usluge topografa;
- iznajmljivanje opreme za bušenje;
- ožičenje inženjerskih komunikacija.
Dakle, cijena izgradnje kuće od opeke po sistemu ključ u ruke određuje se ovisno o mnogim standardnim i pojedinačnim čimbenicima. U prosjeku jednokatna struktura košta kupce približno 1,5 milijuna rubalja, a dvokatna 3 milijuna rubalja. Izračun točnog troška provodi se pojedinačno za svaki pojedini projekt i uzima u obzir sljedeće nijanse:
- vrsta temelja;
- debljina zidova (nosećih i ogradnih);
- materijalni troškovi;
- troškovi inženjerskih komunikacija;
- tip krova;
- troškovi papirologije.
Korisne informacije! Konačni iznos ovisi o broju soba unutar zgrade. A također na cijenu izgradnje kuće od opeke utječe njegovo suočavanje i dekor.
Pri odabiru potrebnog projekta, stručnjaci preporučuju odabir dimenzija zgrade, uzimajući u obzir izglede. Inače, kada se pojave novi članovi obitelji, životni prostor možda jednostavno neće biti dovoljan.
Izrada ciglane zgrade ozbiljan je pothvat koji zahtijeva kompetentan, profesionalan pristup. Nije preporučljivo to raditi samostalno. Pri odabiru vrste gradnje uzimaju se u obzir pojedinačne karakteristike mjesta, vremenski uvjeti u određenoj regiji i financijske mogućnosti kupaca.
























