الحمام هو مبنى في المبنى يجب أن يسود فيه جو ، يفضي إلى السلام والاسترخاء وهواية ممتعة. يلعب الداخل دورًا مهمًا في خلق مثل هذه الظروف ، المكون المهيمن فيه هو الأثاث. أثاث الحمام هو نوع خاص من العناصر الداخلية ذات خصائص محددة. مجموعة كبيرة من النماذج ، مجموعة متنوعة من التصاميم والظلال ، جمال الأشكال والخطوط - كل هذا من سمات الأثاث الخشبي.
المحتوى [Hide]
متطلبات الأثاث في حمام خشبي
إن تجهيز غرفة للاستحمام ليس سهلاً كما يبدو للوهلة الأولى. مزيج "أنيق ومريح" متقلب للغاية. يجب ألا نسمح بظهور بساطة التصميم ، وفي السعي وراء الأصالة ، يجب أن تحاول ألا تفقد الراحة. ما هي الصفات الخاصة التي ينبغي أثاث خشبي للاستحمام؟
يمكنك تحديد المتطلبات الأساسية للعناصر الداخلية من الغرض منها. يأخذون حمام بخار ويستريحون. تتطلب الرطوبة العالية مقاومة المادة والرطوبة. يتطلب الاسترخاء بيئة عمل وإدراك بصري لطيف. لا يمكن أن يشغل الأثاث معظم المساحة في الغرفة ، وإلا فلن تتحقق شروط الراحة والملاءمة. لذلك ، يجب أن يتمتع أثاث الساونا بالخصائص التالية:
- المقاومة الحرارية والرطوبة لمواد التصنيع ؛
- تناسب حجم الأثاث مع معايير الغرفة ؛
- مطابقة النماذج للغرض والتطبيق ؛
- جماليات.
- زخرفة التصميم.
عند اختيار أثاث للاستحمام ، من المهم جدًا عدم زيادة تحميل الغرفة ، حتى لا تخلق عقبات أمام دوران الهواء. مطلوب فقط شراء أو تصنيع العناصر الداخلية الضرورية حقًا.
أثاث خشبي للحمامات والساونا في قلب أي طراز داخلي
أثاث الحمام الخشبي تقليد يعود إلى الماضي البعيد.لم تقترب أي مادة بناء واحدة تم إنشاؤها باستخدام التكنولوجيا الحديثة من جودة الخشب لتصبح المادة الخام الرئيسية للأثاث في الحمام.
لا يوجد نمط واحد من الديكور الداخلي حيث لا يكون الخشب مناسبًا. المنتجات المنحوتة هي سمة من سمات الأسلوب العرقي ؛ نماذج منمنمة - للبلد ؛ تعرض العناصر الوظيفية المحفورة الكلاسيكيات ؛ الأشكال الهندسية الصحيحة ، حتى ، مناسبة للتكنولوجيا الفائقة ؛ يعتبر تباين الألوان والتفاصيل الكبيرة من سمات الطليعة. يمكن تحقيق مجموعة متنوعة من الأفكار الإبداعية وأفكار التصميم بمساعدة الخشب. الصفات التالية تجعلها مادة خام ممتازة لصناعة الأثاث:
- الوزن الحجمي المنخفض
- إمكانية المعالجة بأدوات القطع ؛
- سهولة الترابط
- الموصلية الحرارية المنخفضة.
تتمتع هذه المادة أيضًا بميزة أخرى لا جدال فيها - الود البيئي ، والسلامة من أجل الصحة.
يبدأ الحمام بشماعة: أثاث غرفة تغيير الملابس
أول غرفة في الحمام هي غرفة الملابس. يمكن استخدامه بعدة طرق مختلفة. لكن هناك شيء واحد ثابت: إنه يقع أمام الغرف الرئيسية. لذلك ، غالبًا ما يتم وضع غرفة لارتداء الملابس فيه. في غرفة ارتداء الملابس ، تحتاج إلى تجهيز شماعات أو تركيب خزانة ملابس (مزيج من خيارين ممكن) ، ووضع رف للأحذية.
الشماعات أفضل للملابس الخارجية ، وخزانة الملابس للباقي. من غير المرغوب جعلها صماء ، مغلقة ، حيث لن يتم توفير تهوية كافية. سيكون الخيار المثير للاهتمام هو إصدار الخزانة ، حيث يتم تصنيع أبوابها على شكل شبكة شعرية أو غيرها من الإنشاءات الخفيفة ، أي أنها مزخرفة. بالإضافة إلى ذلك ، سوف يمر الهواء من خلالها بحرية.
إذا سمحت المساحة ، فسيكون من المفيد أن يكون لديك طاولة صغيرة يمكنك أن تضع عليها هاتفك المحمول والمفاتيح حتى لا تتدخل أثناء خلع الملابس. إذا أعطيت خيالك العنان لخيالك ، فسيصبح رف الأحذية تسليط الضوء الحقيقي على تصميم غرفة خلع الملابس.
نصيحة مفيدة! عند تحديد أبعاد رف الأحذية ، يجب أن يؤخذ في الاعتبار أن الأحذية والأحذية الشتوية أعلى بكثير من الأحذية والأحذية الرياضية والنعال. إذا لم تؤخذ هذه الحقيقة في الاعتبار ، فستقف الأحذية في فصل الشتاء بجانب الرف ، وهو أمر غير ممتع من الناحية الجمالية ويتطلب مساحة إضافية.
الرفوف الرئيسية للأحذية. يمكن استخدام الجزء العلوي كمقعد. الخيار الجيد هو جعل الهيكل بأكمله على شكل مقعد مع ظهر يسمح لك بالجلوس بشكل مريح (مهم لمن اعتادوا الجلوس على الأحذية) ويحمي الجدار من الأوساخ والاحتكاك.
لجعل الانطباع العام عن الحمام ممتعًا ، من الضروري إنشاء تصميم داخلي مثير للاهتمام بالفعل في غرفة ارتداء الملابس. من المستحسن صنع أثاث من نوع واحد من الخشب. في غرفة خلع الملابس ، سيكون خشب الصنوبر غير المكلف مقبولًا تمامًا. يجب أن تكون المفروشات الرئيسية بنفس اللون. يمكنك استخدام ظلال أخرى ، ولكن فقط لتزيين قطع فردية من الأثاث.
إذا تم اختيار نمط عتيق ، على سبيل المثال ، فيجب أن يتوافق كل الأثاث أو جميع الأجزاء الأمامية مع هذا التصميم. ستبدو الشماعات المصنوعة بشكل إبداعي مع الخطافات والشوك والملاعق وحيدة بتحد إذا ، على سبيل المثال ، لم يتم إنشاء مقابض الخزائن أو أرجل رف الأحذية بنفس الأسلوب. ومع ذلك ، فإن الإحساس بالتناسب مهم هنا حتى لا يزعج الزوار.
ما الأثاث الذي يجب وضعه في غرفة البخار: نصائح وحيل
الهيكل الخشبي الرئيسي لغرفة البخار هو المظلة. إنها مصنوعة من الخشب ، وإذا قمت بتطبيق خيالك الإبداعي ، فإن الستائر هي التي ستخلق تصميمًا داخليًا فريدًا ومميزًا في هذه الغرفة. في أغلب الأحيان ، يتم إجراء مثل هذه التصميمات في شكل خطوات مغلقة. لكن يمكنك ترتيبها كأرفف معلقة أفقيًا ، أيبخطوات مفتوحة. لا يبدو هذا الترتيب مثيرًا للاهتمام فحسب ، بل يوسع المساحة بصريًا ، ويزيد من منطقة الهواء ، وهو أمر مهم للحالة المادية (نظرًا لدرجة الحرارة في هذه الغرفة).
يشعر بعض زوار الحمام بعدم الارتياح حتى على الدرج السفلي من المظلة. لا يضرهم أن يصنعوا مقعدًا صغيرًا ويضعونه على طول الحائط عند المدخل. يتكون أبسط نسخته من العناصر التالية:
- لوح مصقول ، عرضه 50 مم ، طوله 1100-1200 مم ؛
- 4 عوارض بطول 50 × 50 مم 700 مم ؛
- الأعضاء المتقاطعة 50 × 50 ، بطول 900-1000 مم ؛
- 2 بار 50x50 مم 400 مم.
نصنع أرجل صليبية من قضبان بطول 700 مم. عند نقطة الترابط ، يجب عليك أولاً عمل عينة لسمك القضبان وعمق 25 مم ، قم بتوصيل الأرجل بمسامير ذاتية التنصت. يتم توصيل شريط في الجزء العلوي ، حيث يتم تثبيت الأرجل على لوحة المقعد. بعد التراجع عن الحافة الداخلية (بطول) 100 مم من اللوحة ، تحتاج إلى إرفاق الأرجل بها. ثم من الضروري تقوية الهيكل بقضيب 900 مم ، ووضعه في مفاصل الساق على شكل x. يجب أن تكون جميع السحابات مصنوعة من براغي ذاتية التنصت.
مثل هذا المقعد ، المصنوع من فراغات من نفس السماكة ، سيصبح هيكلًا جماليًا وموثوقًا ، في انسجام تام مع الستائر في شكل خطوات مغلقة. يمكن استكماله مع كرسي زخرفي. ستكون الخزانة المفتوحة ذات الأرفف متعددة المستويات ، حيث يمكنك وضع حوض وطي المكانس ، مفيدة أيضًا.
نصيحة مفيدة! عند اختيار نموذج المظلة ، يجب مراعاة السلامة. يجب أن يكون التصميم مريحًا بحيث يمكنك الصعود والنزول على الرفوف بحرية.
كيفية صنع أثاث مريح للاسترخاء في الحمام
للراحة هو الاسترخاء. وقبل كل شيء مع الجسد. من الضروري اتخاذ وضعية مريحة تخفف من توتر العضلات. بالنظر إلى أن الأثاث مصنوع من الخشب وهو مادة صلبة ، يجب الانتباه بشكل خاص إلى شكله.
مقالات لها صلة:
الأثاث الخشبي: السهولة والحصرية في أي ديكور داخلي
الميزات والفوائد. خصائص المواد الخام واختيار المواد. أفكار بالصور وإرشادات خطوة بخطوة لصنع أثاث للغرف والمنازل الريفية بيديك.
في أغلب الأحيان ، تستخدم المقاعد للاسترخاء في الحمام. يتيح لك وجود مسند الظهر الاتكاء للخلف واسترخاء العمود الفقري. من المهم أن تأخذ في الاعتبار عرض المقعد نفسه والمسافة من الخلف. إذا كان المقعد عريضًا ، فأنت بحاجة إلى الابتعاد لاستخدام مسند الظهر ، ونتيجة لذلك ستصبح الأرجل غير مريحة. عند شراء أثاث مكتمل ، تأكد من تقييم هذا الجانب. من الضروري أن يكون للحافة الخارجية للمقعد شطبة مستديرة ، وأن يكون ارتفاع الظهر بحيث يمكن إرخاء العمود الفقري العنقي.
إذا تم استخدام هيكل السجل بدلاً من الأرجل للطاولة ، فيجب تقييمه في أي موضع ستكون الأرجل على الطاولة ، وما إذا كان قد اتضح أنه "لا يوجد مكان عمليًا لوضعها". من الملائم أن يكون العارضة ، وهي عبارة عن شريط تقوية للطاولة ، في مثل هذا المستوى ولها شكل يمكنك من وضع قدميك عليه إذا كنت ترغب في ذلك (في الحمام لا يتعارض هذا مع الآداب).
البراز غير مقبول لغرفة الاسترخاء في الحمام. إذا كانت المساحة تسمح لك باستخدام الكراسي بدلاً من المقاعد (توفر المزيد من المقاعد) ، فستكون مساند الذراعين من التفاصيل الرائعة. يجب استخدام الكراسي عندما تبقى مسافة 20 سم على الأقل بينها عند وضعها حول الطاولة.
ماذا ترفض وماذا تفضل في تصميم غرفة الاستراحة
تمنح الحالة المادية بعد غرفة البخار والأثاث المريح الفرصة للشخص للاسترخاء.يعتمد تحقيق هذه الرغبة إلى حد كبير على الجزء الداخلي للغرفة. حمام - مبنى إضافي في الموقع ، على التوالي ، صغير الحجم. وحتى أكبر غرفة في الحمام (غرفة الاسترخاء) تبلغ مساحتها 16-20 مترًا مربعًا فقط.
إذا كان تصميم الأثاث بسيطًا ومتواضعًا ، فمن المنطقي تزيين الجزء الداخلي من غرفة الاستراحة في الحمام بألواح جدارية مصنوعة من مواد طبيعية ومناشف ورفوف مع أطباق وتفاصيل أخرى.
نصيحة مفيدة! يجب ألا تعلق اللوحات بالتقنيات التقليدية (الزيت ، الألوان المائية ، إلخ) في غرفة الاستراحة. التغيرات الحتمية في درجة الحرارة والرطوبة لها تأثير ضار على حالتهم. طلاء خاص بالورنيش يحافظ على اللوحات لفترة قصيرة.
في الحمامات ذات الحجم المتواضع ، غالبًا ما يتم دمج غرفة الاسترخاء مع غرفة تغيير الملابس. في مثل هذه الحالات ، تعمل الشاشة الخشبية المزينة بشكل فني ، المتناغمة مع الأثاث الرئيسي ، بشكل مثالي كقسم وتزين الغرفة.
إذا كانت غرفة الاستراحة تتسع لطاولة ومقاعد فقط ، فلا تقلق. عدة أكياس من الكتان ، مزينة بعناصر من مواد طبيعية (البازلاء ، الصنوبر أو الكتان ، بذور عباد الشمس) ، المليئة بالأعشاب العطرية لشرب الشاي ، المعلقة بمهارة على الجدران ، ستضفي على الغرفة طابعًا فريدًا.
يجدر تزيين السقف في غرفة الاستراحة فقط إذا كان مرتفعًا. تجعل الحزم والشبكات والمصابيح المدمجة في مناطق مصممة خصيصًا الجزء العلوي من الغرفة معبرًا ، ولكن عندما تكون منخفضة ، فإنها "تسحق" الغرفة. يتم إنشاء الراحة من خلال نشر الضوء الناعم.
يجدر استكمال المناطق الداخلية بالنباتات الداخلية فقط إذا كان من الممكن تهيئة الظروف اللازمة لها:
- ضوء كاف
- رطوبة الهواء - 60٪ على الأقل ؛
- القدرة على تقديم الرعاية المستمرة.
على الصور المقترحة - غرفة استرخاء في الحمام. ستساعدك أفكار التصميم المشرقة والأصلية على الاختيار وتحديد نمط زخرفة الغرفة. إذا كان من المستحيل تجسيد الفكرة ككل ، يمكنك استخدام عناصر التصميم التي تعجبك.
اختيار الأثاث الأمثل للاستحمام في غرفة الاستراحة
الراحة في الحمام لها اختلافات كبيرة عن الراحة في أي غرفة أخرى: حالة جسدية خاصة ، والرغبة في التواصل ، وعدم الرغبة في التقاعد. وبالتالي ، تحتاج غرفة الاستراحة إلى طاولة وكراسي (أو أثاث جلوس آخر) يجمع الجميع معًا على فنجان من الشاي. مطلب إلزامي: يجب أن يكون سطح هذا الأثاث مصقولًا تمامًا حتى لا يشعر الجسم بعدم الراحة عند لمسه. من الضروري أن تسمح أبعاد سطح العمل بتركيب مآخذ مع المربى والعسل ، وكذلك السماور - وهي سمة أساسية للحمام الروسي الحقيقي.
إذا سمحت معلمات الغرفة ، بالإضافة إلى وجود أموال ، فإن الأمر يستحق شراء خزانة. يُنصح بهذا من وجهة نظر الصرف الصحي: سيتم الاحتفاظ بالأطباق في مكان مخصص بشكل خاص ، ولن يتم تخزينها في صندوق عشوائي أو أي مكان آخر مناسب. ولكن يجب بالضرورة أن يكمل تصميم غرفة الاسترخاء في الحمام ، وأن يكون متناغمًا مع بقية الأثاث ، وألا يُنظر إليه على أنه عنصر قائم بذاته.
إذا كانت هناك مساحة خالية ، يمكنك وضع أريكة بحجم صغير أو أريكة مع طاولة صغيرة مزخرفة - إنشاء مكان لأولئك الذين يرغبون في إجراء محادثة خاصة أو التحدث على الهاتف أو تغيير وضع جسمهم فقط. لا تؤذي بعض طاولات السرير الصغيرة ، حيث يمكنك وضع مستحضرات التجميل وأدوات النظافة الشخصية الأخرى مؤقتًا. المتطلبات الأساسية لأثاث الحمامات:
- وظائف؛
- التطبيق العملي.
- جماليات.
- الامتثال للأسلوب.
نصيحة مفيدة! عند شراء أثاث منجد لغرفة استرخاء في الحمام ، يجب عليك اختيار مواد تنجيد لا تمتص الرطوبة. حتى أفضل تهوية لن تجف بشكل صحيح.
بأسعار معقولة وغير مكلفة ومريحة: أثاث ساونا بيديك
إذا كانت هناك رغبة ، فمن الممكن تمامًا صنع أثاث للحمام بنفسك ، حتى مع الحد الأدنى من المهارات في العمل بالخشب. يتطلب هذا مجموعة معينة من الأدوات ، والتي تعتمد على حالة الخشب الذي تم شراؤه (معالج أم لا) وعلى النموذج المحدد. مجموعة الأدوات الأساسية هي كما يلي:
- منشار يدوي أو كهربائي
- ورق الصنفرة أو المطحنة
- طائرة ميكانيكية أو كهربائية
- تدريبات؛
- مفك براغي؛
- أدوات القياس: شريط قياس ، مسطرة ، مستوى ، صندوق ميتري.
سيستغرق صنع أثاث الحمامات والساونا من الخشب بعض الوقت. أثناء العملية ، لن تكون هناك صعوبات إذا أجريت حسابات دقيقة وكانت الأداة المستخدمة في حالة جيدة.
رسومات ومخططات لتجميع أثاث للاستحمام بيديك
بسيطة ظاهريًا ، ولكنها تتطلب الامتثال لقواعد معينة لترتيب الأجزاء الفردية ، فالرفوف. بالنسبة لهذا الهيكل متعدد المستويات ، تعتبر الأبعاد المثلى للأرفف والفجوات بينها وبين جدران غرفة البخار مهمة. لا ينبغي اختيار شعاع لصنع إطار ضخم. الأبعاد الكافية 50 × 70 مم أو 60 × 70 مم. سيتم الحفاظ على حمولة ثقيلة ولن تكون هناك مشاكل في التجفيف.
المسافة الموصى بها من الأرضية إلى الرف السفلي لا تقل عن 400 مم ، بين الرفوف - 500 مم. يجب ألا يقل عرض الرف العلوي عن 600 مم. من الضروري ترك فجوة حوالي 100 مم بين الألواح والجدار وحتى 10 مم بين الألواح. هناك حاجة إلى موافقات لتوفير التهوية. يجب ألا يقل الارتفاع بين الرف العلوي والسقف عن 1100 مم.
نصيحة مفيدة! إذا كان أثاث الحمام مصنوعًا من خشب الصنوبر ، فمن الضروري تسخين غرفة البخار 3-4 مرات أثناء غياب الزوار ، وبذلك تصل درجة الحرارة إلى الحد الأقصى. سيساعد هذا في إزالة الراتنج من الخشب.
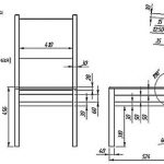
من الممكن أن تصنع طاولتك الخاصة. بعد النظر في صورة أثاث الحمام ، وبعد أن يكون أمامك رسم بأبعاد تم التحقق منها وتسلسل تجميع مفهوم ، يمكنك أن تأخذ التصنيع بأمان. الخيار المقترح هو طاولة كلاسيكية ، قاعدة. إذا رغبت في ذلك ، يمكن استكماله بعناصر زخرفية.
بالنسبة للجدول ، ستحتاج إلى مجموعة المواد التالية:
- ألواح لسطح الطاولة 10x50x1200 مم (8 قطع) ؛
- قضبان للأرجل 50x50x650 مم (4 قطع) ؛
- شرائح للحزم الطولية 25x100x1050 مم (قطعتان) ؛
- شرائح للعوارض المتقاطعة 25x100x750 مم (4 قطع).
تسلسل التنفيذ:
- نضع الألواح المعالجة ، باستخدام مسامير ذاتية التنصت وغراء الخشب ، نربطها (نضعها مع الجانب العريض على سطح الطاولة) بعوارض عرضية ، في نهاياتها يتم عمل قواطع للأرجل.
- ثم ، باستخدام الغراء ومسامير التنصت الذاتية ، نعلق الأرجل عن طريق إدخالها في القواطع.
- نضع الحزم الطولية ، ونغلف الساقين ، ونعلقها أيضًا بالغراء ومسامير التنصت الذاتية.
- نقوم بتطبيق الطلاءات الوقائية والزخرفية.
تبين أن البناء غير خشن ومستقر ومتعدد الاستخدامات. يمكنك وضع مقاعد بالقرب منه ، كراسي جلوسوالأرائك والكراسي الصغيرة. يمكن أيضًا صنع الكراسي بنفسك. يجب أن تكون الفراغات التالية متوفرة:
- ألواح المقاعد 50x100x500 مم (5 قطع) ؛
- قضبان للتثبيت 50x100x490 مم (قطعتان) ؛
- شرائح للحزم الطولية 25x100x475 مم (2 قطعة) ؛
- شرائح للقضبان العرضية 25x100x540 مم (قطعتان) ؛
- رفوف مسند الظهر 50x50x580 مم (قطعتان) ؛
- ألواح للظهر 50 × 100 × 540 مم (قطعتان) ؛
- قضبان الأرجل الخلفية 50 × 50 × 610 مم (قطعتان) ؛
- قضبان للأرجل الأمامية 50x50x600 مم (قطعتان) ؛
- مساند للذراعين 25 × 70 × 467 مم (قطعتان).
خطوات التجميع:
- يجب قطع الألواح وقضبان التثبيت ومساند الذراعين والقوائم والأرجل الأمامية بزاوية 90 درجة. يتم وضع الحزم بزاوية 45 درجة. الأرجل الخلفية - بزاوية 11 درجة. على جانب واحد من مساند الظهر ، يلزم قطع 200 مم بزاوية 5 درجات.
- ضع الألواح على فترات 10 مم ، اربطها بقضبان. ثم قم بإصلاح العوارض العرضية الطولية والعرضية.
- نعلق ونعلق على العارضة الخلفية. اربط الألواح للظهر بالرفوف.
- اربط الساقين بالدرجات الطولية ، ضع مساند الذراعين على الساقين وقم بإصلاحها.
يجب إجراء جميع الوصلات بمسامير ذاتية التنصت وغراء الخشب. أثاث الساونا المصنوع من الخشب بأيديهم قوة وموثوقية واقتصاد.
أطقم أثاث الحمامات والساونا الجاهزة: شروط الاختيار
إذا لم تكن هناك فرصة أو مصدر إلهام للتجميع الذاتي ، فيمكن شراء أثاث الحمامات والساونا الجاهزة. تمتلئ شبكات التداول بمجموعة متنوعة من الموديلات ، بدءًا من الطاولات والمقاعد المحبوكة بشكل فظ إلى الخزائن المصنوعة من خشب البلوط المنحوت والكراسي الهزازة المصممة. يعتمد الاختيار في المقام الأول على الذوق وتوافر الأموال.
بعض النصائح العامة لمساعدتك على تجنب الأخطاء عند الشراء:
- عند شراء أثاث جاهز ، تأكد من طلب مستند رسمي يتم فيه تحديد تاريخ الشراء وخصائص البضاعة ، وإلا ، إذا لزم الأمر ، لن يكون هناك من يدعي ؛
- فحص البضائع بعناية بحثًا عن عيوب مادية: رقائق ، شقوق ، أماكن لصقها ؛
- اختر أثاثًا متينًا (خشب عالي الجودة ومثبتات موثوقة) - هذا هو مفتاح متانته.
تعتمد أسعار أثاث الحمام على نوع الخشب المستخدم وتكنولوجيا التصنيع وجودة الطلاء. سيكلف التصميم البسيط للمقعد مع ظهر أسبن 3500 روبل. تكلفة كرسي مصنوع من نفس المادة ، بدون ديكور ، 1650 روبل ، طاولة متوسطة الحجم (150 × 70 سم) 3000 روبل. يصل سعر موديلات الأثاث الحصرية إلى 150 ألف روبل.
أثاث الحمام: بعض النصائح "الساخنة" للاختيار
أساس التصميم الداخلي لغرفة الاسترخاء في الحمام هو الأثاث تحديدًا. ديكور الجدران وتركيبات الإضاءة وستائر النوافذ تكمل وتسليط الضوء على النمط المختار.
ليس من الضروري أن يكون أثاث جميع الغرف من نفس النوع ، لكن التباين في هذه الحالة غير مناسب ، حيث أن الغرف صغيرة وتقع بجوار بعضها البعض. توضح الصور المقترحة لتصميم الحمام مع غرفة استرخاء بالداخل ذلك بوضوح.
من الضروري الحفاظ على الأثاث نظيفًا تمامًا. يسبب وجود خطوط وخطوط وسحجات عدم الراحة. يجب مراجعة المرفقات والتوصيلات بشكل دوري للتأكد من أن الأثاث لا ينكسر أو ينكسر فجأة.
يوصى باستخدام مواد طبيعية لصناعة الأثاث. عند اختيار المصابيح والأطباق والنعال والمناديل والأشياء الأخرى المستخدمة في الحمام ، يجب أن تسعى جاهدة لتحقيق الطبيعة والود البيئي. هذا يجلب الانسجام وله تأثير مفيد على الإدراك النفسي للبيئة وعلى الحالة المزاجية.
الحمام ، المجهز بشكل عقلاني ومؤثث بذوق ، هو فخر حقيقي للمالك ومكان رائع للاسترخاء والتواصل.


























































































































